Projects
About
Contact
Media
Projects
About
Contact
Media
urbanideas
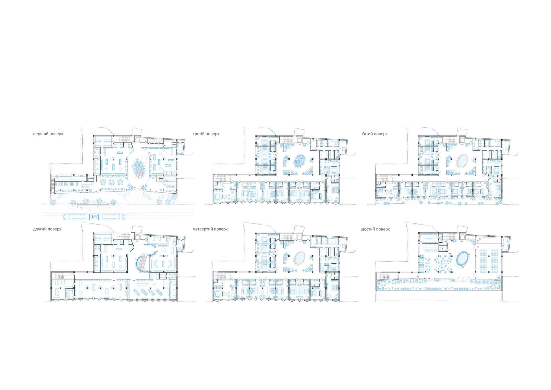
Doroshenka
Project by: Urban Ideas / RUTHENIA
Project location: Lviv, Ukraine.
Design year: 2020
Competition.
↑
Back to Top